
Sibirana
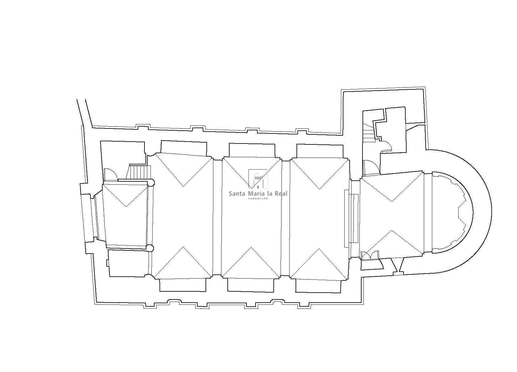
La iglesia del Salvador de Luesia es actualmente la parroquia de la villa y pertenece al obispado de Jaca. Está ubicada junto a los restos del castillo, al pie de la peña rocosa donde éste se eleva, formando el típico binomio tan utilizado ...