Pasar al contenido principal
x

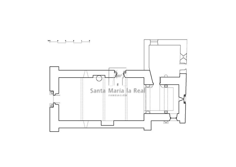
Planta con delimitación de la fase románica

Identificador
36017_2505_075
Tipo
Formato
Fecha
Cobertura
42º 44' 52.38'' , - 8º 21' 54.50''
Idioma
Autor
María Fernández Fernández
Colaboradores
Sin información
Edificio Procedencia (Fuente)

 

País
España
Edificio (Relación)

Iglesia de Santa María

Localidad
Loimil
Municipio
A Estrada
Provincia
Pontevedra
Comunidad
Galicia
País
España
Descripción
Sin información