
Villabermudo
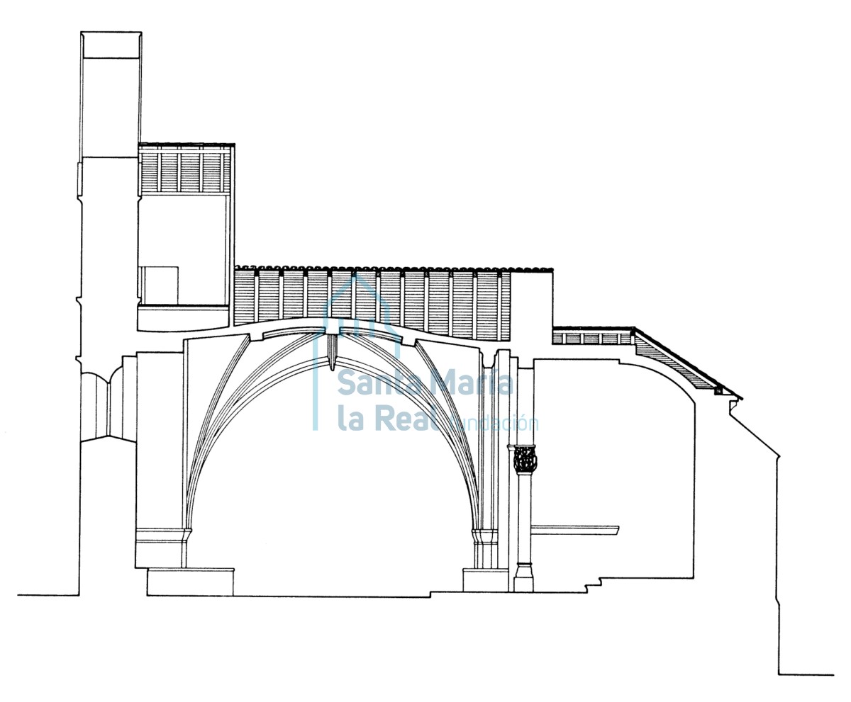
SI ANALIZAMOS LA TIPOLOGÍA planimétrica actual del edificio -dado a conocer por José María Quadrado en el siglo XIX-, nos damos cuenta de que ésta responde a un esquema que podríamos considerar atípico dentro del románico rural palentino: d...